Villa Monte Sole

Via Monte Sole 19, Porto Valtravaglia, Italia (1.5 km dal centro)
Cerca
Posizione / nome dell'albergo
Data di arrivo:
Data di partenza:
Adulti/Bambini:
Adulti 2, Bambini 0
Camera 1:
* Bambini da 2 a 12 anni
Garanzia del prezzo migliore
Commissione per prenotazione esclusa
La conferma di prenotazione istantanea
1.5 km dal centro
Specifica le date per vedere i prezzi e disponibilità
Tipo di camera Ospiti
x 4
Casa Vacanze
Descrizione di camera
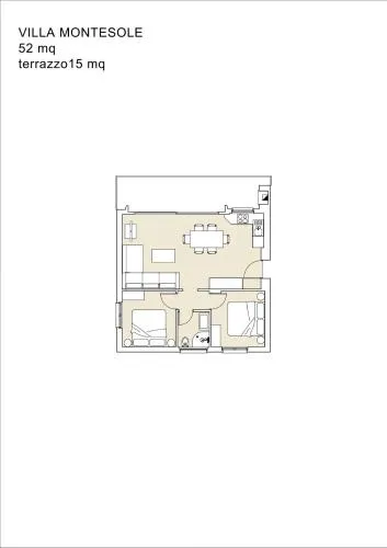
Questa casa vacanze include 1 soggiorno, 2 camere da letto separate e 1 bagno con doccia e set di cortesia. La cucina è ben attrezzata e completa di piano cottura, frigorifero, lavastoviglie e utensili. La sistemazione vanta un barbecue. L’alloggio offre un ingresso indipendente, una terrazza affacciata sul lago e una TV a schermo piatto con canali via cavo. L’unità presenta 2 letti.
Bambini con letti supplementari
Bambini: non più di 3
Comodità Bollitore tè/macchina caffè, Doccia, TV, Ferro da stiro, Angolo cottura, Balcone, Frigorifero, Ferro e asse da stiro, Zona soggiorno, Prodotti da bagno in omaggio, WC, Forno a microonde, Lavastoviglie, Bagno privato, Riscaldamento, Canali satellitari, Cucina, Canali via cavo, Vasca o doccia, TV a schermo piatto, Ingresso indipendente, Divano, Pavimento in marmo o in piastrelle, Vista, Zona pranzo, Bollitore elettrico, Utensili da cucina, Armadio o guardaroba, Forno, Piano cottura, Tostapane, Barbecue, Vista lago, Vista giardino, Vista montagna, Macchina da caffè, Terrazza, Asciugamani, Biancheria per la casa, Tavolo da pranzo, Arredamento da esterno, Zona pranzo all'aperto, Piani superiori accessibili solo tramite scale, Indipendente, Stand appendiabiti, Stendibiancheria, Carta igienica, Campanello di emergenza nel bagno, Teli, Pattumiere, Calici da vino, Shampoo, Bagnoschiuma, Cuffia da doccia, Presa elettrica vicino al letto, Adattatore, Cuscino non di piume, Estintori

Situato vicino - Villa Monte Sole

Aeroporti più vicini
  • Aeroporto di Lugano Agno 26 km
  • Aeroporto di Locarno 38 km
  • Aeroporto di Milano Malpensa 52 km
Bellezze della natura
  • Lago Maggiore 0 m
  • Cascate di Cittiglio 14 km
Cosa c'è in zona
  • Chiesa di Madonna di Campagna 19 km
  • Giardini Botanici di Villa Taranto 18 km
  • Parco Giona 12 km
  • Parco Lago 7 km
  • Parco Pubblico Boschetto 6 km
  • Santuario Beata Vergine D. Grazie 12 km
  • Torre Imperiale 12 km
  • Chiesa di San Giorgio 15 km
Impianti di risalita
  • Passo Forcora – Monte Cadrigna Ski Lift 27 km
  • Skilift Rieno 30 km
  • Skilift Baby 30 km
Attrazioni principali
  • Villa della Porta Bozzolo 12 km
Ristoranti e caffetterie
  • Sofì Lounge Cafè 7 km
  • Happy 5 km
  • Bjork's Cafè di Di Gangi Parvin 6 km
  • Sicily Caffè Pasticceria Gelateria Caffetteria 3.6 km
  • Circolo di Muceno-Pizza e Cucina 2.1 km
  • Trattoria il Ritrovo 3.1 km
Mezzi pubblici
  • Porto Valtravaglia 4.1 km
  • Caldè 6 km

Condizioni di soggiorno - Villa Monte Sole

Arrivo 16:00
Partenza 10:00
Internet Internet WiFi disponibile gratuitamente nelle camere.
Parcheggio Parcheggio pubblico disponibile gratuitamente in loco senza prenotazione.
Animali Animali ammessi su richiesta. Potrebbe essere richiesto un supplemento.
Bambini con letti supplementari Sono ammessi bambini di tutte le età. Non hai aggiunto culle. Non hai aggiunto letti supplementari.

*Annotazione

Siete pregati di comunicare in anticipo a l'orario in cui prevedete di arrivare. Potrete inserire questa informazione nella sezione Richieste Speciali al momento della prenotazione, o contattare la struttura utilizzando i recapiti riportati nella conferma della prenotazione. La struttura non è disponibile per feste di addio al nubilato/celibato o simili. Al check-in gli ospiti devono esibire un documento d'identità con foto e una carta di credito. Siete pregati di notare che le Richieste Speciali sono soggette a disponibilità, e potrebbero comportare l'addebito di un supplemento.

Recensioni - Villa Monte Sole

Commenti veri al 100% Ospiti veri. Viaggi veri. Opinioni veri.
8.9 In base a 31 recensione

Servizio

8.9

Prezzo/qualità

7.8

Personale

9.2

Posizione

8.9

Pulizia

9.1

8.9

Comodità

8.6

Domande frequenti: Villa Monte Sole

Quanto costa il soggiorno in ville Villa Monte Sole?
Il prezzo del soggiorno in ville Villa Monte Sole dipende dalla data, prezzo, dalla quantità degli ospiti ecc.. Inserite le vostre date per vedere i prezzi.
Quali sono gli orari di check-in e check-out in ville Villa Monte Sole?
Fare check-in in ville Villa Monte Sole è possibile dalle ore 16:00 e fare check-out fino alle ore 10:00.
C’è un parcheggio in Villa Monte Sole?
In Villa Monte Sole il parcheggio non è disponibile.
Quanto è lontano si trova Villa Monte Sole dall’aeroporto più vicino?
Villa Monte Sole si trova 26 km dall’aeroporto più vicino (Aeroporto di Lugano Agno).
Come prenotare albergo
Data del vostro viaggio
Compila la forma di prenotazione semplice
Prenotazione istantanea
Ricevi la conferma della tua prenotazione alla posta elettronica
Paga direttamente in albergo