Foglie d'Argento

Località Facciù, 35, Moneglia, Italia (1.6 km dal centro)
Cerca
Posizione / nome dell'albergo
Data di arrivo:
Data di partenza:
Adulti/Bambini:
Adulti 2, Bambini 0
Camera 1:
* Bambini da 2 a 12 anni
Garanzia del prezzo migliore
Commissione per prenotazione esclusa
La conferma di prenotazione istantanea
1.6 km dal centro
Specifica le date per vedere i prezzi e disponibilità
Tipo di camera Ospiti
x 6
Casa Vacanze
Descrizione di camera
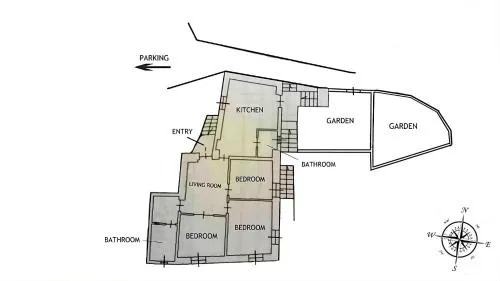
Featuring a private entrance, this holiday home comprises 1 living room, 3 separate bedrooms and 2 bathrooms with a shower and a bidet. Guests will find a stovetop, a refrigerator, a dishwasher and kitchenware in the kitchen. The holiday home also provides guests with a barbecue. Boasting a balcony with sea views, this holiday home also provides a washing machine and a flat-screen TV with cable channels. The unit offers 3 beds.
Bambini con letti supplementari
Bambini: non più di 5
Comodità Bollitore tè/macchina caffè, Doccia, TV, Asciugacapelli, Ferro da stiro, Angolo cottura, Balcone, Frigorifero, Ferro e asse da stiro, Zona soggiorno, Prodotti da bagno in omaggio, WC, Forno a microonde, Lavastoviglie, Lavatrice, Patio, Bagno privato, Letti lunghi (oltre 2 metri), Riscaldamento, Canali satellitari, Cucina, Canali via cavo, Vasca o doccia, Disponibilità di camere comunicanti, TV a schermo piatto, Ingresso indipendente, Divano, Pavimento in marmo o in piastrelle, Vista, Zona pranzo, Bollitore elettrico, Utensili da cucina, Armadio o guardaroba, Forno, Piano cottura, Barbecue, Bidet, Vista mare, Vista giardino, Vista montagna, Vista luogo di interesse, Prodotti per le pulizie, Macchina da caffè, Vista città, Asciugamani, Biancheria per la casa, Tavolo da pranzo, Seggiolone, Arredamento da esterno, Zona pranzo all'aperto, Intera unità situata al piano terra, Piani superiori accessibili solo tramite scale, Indipendente, Stand appendiabiti, Stendibiancheria, Carta igienica, WC rialzato, Pattumiere, Lettini e culle per bambini, Shampoo, Bagnoschiuma, Presa elettrica vicino al letto, Cuscino di piume, Cuscino non di piume, Vista cortile interno, Vista su strada tranquilla, Estintori, Accesso con chiavi

Situato vicino - Foglie d'Argento

Aeroporti più vicini
  • Aeroporto di Genova-Sestri 70 km
Bellezze della natura
  • Passo del Bracco 8 km
  • Punta Manara 10 km
Spiagge nei dintorni
  • Spiaggia di Moneglia 2 km
  • Spiaggia di Deiva Marina 6 km
  • Spiaggia Renà 8 km
Ristoranti e caffetterie
  • Bagni Orchidea 1.6 km
  • Albergo la Marina 6 km
  • Mugnaini Giuseppe di Mugnaini Patrizia 7 km
  • Villa Argentina 1.5 km
  • =a Campana da Angio'= 2 km
  • Ristorante l'Uliveto 750 m
Cosa c'è in zona
  • Parco degli Ulivi Trigoso 8 km
  • Parco Sterza 9 km
  • Parco D. Sedini 9 km
  • Parco Tigullio 19 km
Mezzi pubblici
  • Moneglia 1.7 km
  • Deiva Marina 6 km

Condizioni di soggiorno - Foglie d'Argento

Arrivo 15:00
Partenza 10:30
Internet Internet WiFi disponibile gratuitamente in tutta la struttura.
Parcheggio Parcheggio privato disponibile gratuitamente in loco senza prenotazione.
Animali Animali non ammessi.
Bambini con letti supplementari Sono ammessi bambini di tutte le età. Non hai aggiunto letti supplementari. Qualsiasi tipo di letto supplementare o culla è disponibile su richiesta e previa conferma da parte della struttura.

*Annotazione

Siete pregati di comunicare in anticipo a l'orario in cui prevedete di arrivare. Potrete inserire questa informazione nella sezione Richieste Speciali al momento della prenotazione, o contattare la struttura utilizzando i recapiti riportati nella conferma della prenotazione. La struttura non è disponibile per feste di addio al nubilato/celibato o simili. Struttura gestita da un host privato

Recensioni - Foglie d'Argento

Commenti veri al 100% Ospiti veri. Viaggi veri. Opinioni veri.
9.1 In base a 33 recensioni

9.1

Comodità

9.5

Posizione

8.8

Personale

9.5

Prezzo/qualità

8.4

Pulizia

9.5

Servizio

9.2

Domande frequenti: Foglie d'Argento

Quanto costa il soggiorno in case vacanze Foglie d'Argento?
Il prezzo del soggiorno in case vacanze Foglie d'Argento dipende dalla data, prezzo, dalla quantità degli ospiti ecc.. Inserite le vostre date per vedere i prezzi.
Quali sono gli orari di check-in e check-out in case vacanze Foglie d'Argento?
Fare check-in in case vacanze Foglie d'Argento è possibile dalle ore 15:00 e fare check-out fino alle ore 10:30.
C’è un parcheggio in Foglie d'Argento?
In Foglie d'Argento il parcheggio non è disponibile.
Quanto è lontano si trova Foglie d'Argento dall’aeroporto più vicino?
Foglie d'Argento si trova 70 km dall’aeroporto più vicino (Aeroporto di Genova-Sestri).
Come prenotare albergo
Data del vostro viaggio
Compila la forma di prenotazione semplice
Prenotazione istantanea
Ricevi la conferma della tua prenotazione alla posta elettronica
Paga direttamente in albergo