Sestuccina

Loc. Sestuccia, Gaiole in Chianti, Italia (2.1 km dal centro)
Cerca
Posizione / nome dell'albergo
Data di arrivo:
Data di partenza:
Adulti/Bambini:
Adulti 2, Bambini 0
Camera 1:
* Bambini da 2 a 12 anni
Garanzia del prezzo migliore
Commissione per prenotazione esclusa
La conferma di prenotazione istantanea
2.1 km dal centro
Specifica le date per vedere i prezzi e disponibilità
Tipo di camera Ospiti
x 6
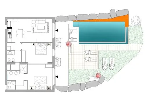
Villa
Descrizione di camera
This villa's standout features are the pool with a view, hot tub and fireplace. Featuring a private entrance, this air-conditioned villa comprises 1 living room, 2 separate bedrooms and 2 bathrooms with a walk-in shower and a bidet. Guests will find a stovetop, a refrigerator, a dishwasher and kitchenware in the kitchen. The villa also provides guests with a barbecue. Boasting a terrace with garden views, this villa also provides a washing machine and a flat-screen TV with satellite channels. The unit offers 3 beds.
Bambini con letti supplementari
Bambini: non più di 5
Comodità Bollitore tè/macchina caffè, Minibar, Doccia, TV, Aria condizionata, Asciugacapelli, Vasca idromassaggio, Ferro da stiro, Angolo cottura, Balcone, Stirapantaloni, Frigorifero, Scrivania, Ferro e asse da stiro, Zona soggiorno, Prodotti da bagno in omaggio, WC, Forno a microonde, Lavastoviglie, Lavatrice, Patio, Bagno privato, Riscaldamento, Canali satellitari, Cucina, Vasca o doccia, Camino, Disponibilità di camere comunicanti, TV a schermo piatto, Ingresso indipendente, Divano, Insonorizzazione, Pavimento in marmo o in piastrelle, Vista, Zona pranzo, Bollitore elettrico, Utensili da cucina, Piscina privata a uso esclusivo, Armadio o guardaroba, Forno, Piano cottura, Tostapane, Barbecue, Bidet, Vista giardino, Vista piscina, Vista montagna, Vista luogo di interesse, Prodotti per le pulizie, Bagno aggiuntivo, Macchina da caffè, Terrazza, Asciugamani, Biancheria per la casa, Tavolo da pranzo, Seggiolone, Arredamento da esterno, Zona pranzo all'aperto, Intera unità situata al piano terra, Indipendente, Stand appendiabiti, Stendibiancheria, Carta igienica, Divano letto, Doccia a filo pavimento, Piscina a sfioro, Piscina con vista, Teli, Bottiglia d'acqua, Pattumiere, Calici da vino, Lettini e culle per bambini, Shampoo, Bagnoschiuma, Presa elettrica vicino al letto

Situato vicino - Sestuccina

Aeroporti più vicini
  • Aeroporto di Firenze Peretola 76 km
Cosa c'è in zona
  • Castello di Meleto 2.2 km
Bellezze della natura
  • Passo la Croce 8 km
Ristoranti e caffetterie
  • Tenuta di Ricavo 25 km
  • Circolo Castelnuovo dei Sabbioni 14 km
  • Bar Fermata 45 19 km
  • Osteria Monna Ginevra 3 km
  • La Fornace a Meleto 1.5 km
  • La Vineria di Vertine 2.6 km

Condizioni di soggiorno - Sestuccina

Arrivo 16:00
Partenza 10:00
Internet Internet WiFi disponibile gratuitamente in tutta la struttura.
Parcheggio Parcheggio privato disponibile gratuitamente in loco senza prenotazione.
Animali Animali non ammessi.
Bambini con letti supplementari Sono ammessi bambini di tutte le età. I bambini fino a 1 anno incluso possono soggiornare gratis in una culla (se disponibile). I bambini fino a 15 anni inclusi possono soggiornare gratis in uno dei letti già presenti. Gli ospiti di qualsiasi età possono soggiornare gratis in un letto extra (se disponibile). Non hai aggiunto letti supplementari. Qualsiasi tipo di letto supplementare o culla è disponibile su richiesta e previa conferma da parte della struttura.

*Annotazione

È necessario pagare prima dell'arrivo tramite bonifico bancario. Dopo aver prenotato, la struttura vi contatterà per fornirvi le relative istruzioni. Siete pregati di comunicare in anticipo a l'orario in cui prevedete di arrivare. Potrete inserire questa informazione nella sezione Richieste Speciali al momento della prenotazione, o contattare la struttura utilizzando i recapiti riportati nella conferma della prenotazione. Struttura gestita da un host privato

Recensioni - Sestuccina

Commenti veri al 100% Ospiti veri. Viaggi veri. Opinioni veri.
9.8 In base a 4 recensioni

Servizio

10

9.8

Prezzo/qualità

10

Posizione

10

Personale

10

Pulizia

9.4

Comodità

10

Domande frequenti: Sestuccina

Quanto costa il soggiorno in case vacanze Sestuccina?
Il prezzo del soggiorno in case vacanze Sestuccina dipende dalla data, prezzo, dalla quantità degli ospiti ecc.. Inserite le vostre date per vedere i prezzi.
Quali sono gli orari di check-in e check-out in case vacanze Sestuccina?
Fare check-in in case vacanze Sestuccina è possibile dalle ore 16:00 e fare check-out fino alle ore 10:00.
C’è un parcheggio in Sestuccina?
In Sestuccina il parcheggio non è disponibile.
Quanto è lontano si trova Sestuccina dall’aeroporto più vicino?
Sestuccina si trova 76 km dall’aeroporto più vicino (Aeroporto di Firenze Peretola).
Come prenotare albergo
Data del vostro viaggio
Compila la forma di prenotazione semplice
Prenotazione istantanea
Ricevi la conferma della tua prenotazione alla posta elettronica
Paga direttamente in albergo