Casa Emilia

Viale G. E. Falck, 5, Dongo, Italia (255 m dal centro)
Cerca
Posizione / nome dell'albergo
Data di arrivo:
Data di partenza:
Adulti/Bambini:
Adulti 2, Bambini 0
Camera 1:
* Bambini da 2 a 12 anni
Garanzia del prezzo migliore
Commissione per prenotazione esclusa
La conferma di prenotazione istantanea
255 m dal centro
Specifica le date per vedere i prezzi e disponibilità
Tipo di camera Ospiti
x 11
Villa
Descrizione di camera
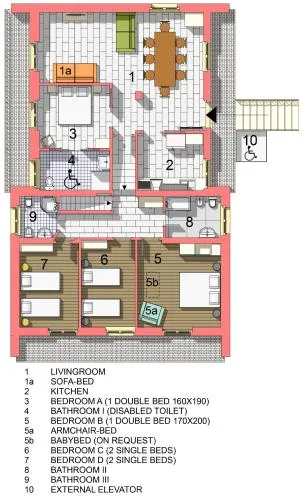
The private pool is the special feature of this villa. Featuring a private entrance, this air-conditioned villa comprises 1 living room, 4 separate bedrooms and 4 bathrooms with a walk-in shower and a bidet. Guests will find a stovetop, a refrigerator, a dishwasher and kitchenware in the well-equipped kitchen. The villa also provides guests with a barbecue. Boasting a terrace with garden views, this villa also provides a washing machine and a flat-screen TV with cable channels. The unit offers 8 beds.
Bambini con letti supplementari
Bambini: non più di 9
Comodità Bollitore tè/macchina caffè, Doccia, TV, Aria condizionata, Asciugacapelli, Ferro da stiro, Angolo cottura, Balcone, Frigorifero, Ferro e asse da stiro, Zona soggiorno, Prodotti da bagno in omaggio, Ventilatore, WC, Forno a microonde, Lavastoviglie, Lavatrice, Patio, Bagno privato, Riscaldamento, Canali satellitari, Cucina, Canali via cavo, TV a schermo piatto, Ingresso indipendente, Divano, Pavimento in marmo o in piastrelle, Vista, Parquet o pavimento in legno, Zona pranzo, Bollitore elettrico, Utensili da cucina, Zanzariera, Piscina privata a uso esclusivo, Armadio o guardaroba, Piano cottura, Tostapane, Barbecue, Bidet, iPad, Vista giardino, Vista piscina, Vista montagna, Prodotti per le pulizie, Macchina da caffè, Vista città, Terrazza, Asciugamani, Biancheria per la casa, Tavolo da pranzo, Seggiolone, Arredamento da esterno, Zona pranzo all'aperto, Piani superiori accessibili tramite ascensore, Indipendente, Stand appendiabiti, Letto pieghevole, Stendibiancheria, Carta igienica, Cancelletti di sicurezza per bambini, Divano letto, WC con maniglioni, Doccia con accesso per sedie a rotelle, Doccia a filo pavimento, WC rialzato, Lavabo più basso, Campanello di emergenza nel bagno, Piscina di acqua salata, Pattumiere, Calici da vino, Lettini e culle per bambini, Presa elettrica vicino al letto, Alloggio accessibile tramite ascensore, Vista cortile interno, Estintori, Accesso con chiavi, Aria condizionata indipendente in ogni alloggio

Situato vicino - Casa Emilia

Aeroporti più vicini
  • Aeroporto di Lugano Agno 46 km
  • Aeroporto di Locarno 70 km
  • Aeroporto di Milano Linate 93 km
Cosa c'è in zona
  • Parco Civico Teresio Olivelli 19 km
  • Villa Carlotta 18 km
  • Parco Martiri della Libertà 19 km
  • Villa Monastero 14 km
  • Lake Como Adventure Park 4.9 km
  • Castello Di Vezio 14 km
  • Abbazia di Piona 9 km
  • Riserva Naturale Pian di Spagna e Lago di Mezzola 13 km
  • Santa Maria Delle Grazie 3.3 km
Bellezze della natura
  • Lago di Como 0 m
Spiagge nei dintorni
  • Spiaggia di Gravedona 3.3 km
  • Spiaggia di Domaso 5 km
Ristoranti e caffetterie
  • Eurobar 2.4 km
  • Eurogas Dongo 1.5 km
  • Eurogas Dongo 1.3 km
  • Albano 200 m
  • La Lampara 250 m
  • Campeggio la Breva 200 m
Mezzi pubblici
  • Piona 11 km
  • Dorio 10 km

Condizioni di soggiorno - Casa Emilia

Arrivo 15:00
Partenza 10:00
Internet Internet WiFi disponibile gratuitamente in tutta la struttura.
Parcheggio Parcheggio privato disponibile gratuitamente in loco senza prenotazione.
Animali Animali ammessi su richiesta. Potrebbe essere richiesto un supplemento.
Bambini con letti supplementari Sono ammessi bambini di tutte le età. I bambini fino a 2 anni inclusi possono soggiornare gratis in una culla (se disponibile). I bambini fino a 2 anni inclusi possono soggiornare gratis in uno dei letti già presenti. Non hai aggiunto letti supplementari. Qualsiasi tipo di letto supplementare o culla è disponibile su richiesta e previa conferma da parte della struttura.

*Annotazione

Gli ospiti di età inferiore ai 18 anni possono effettuare il check-in solo se accompagnati da un genitore o da un tutore legale. Piscina: periodo di chiusura lun 6 ott 2025 - dom 31 mag 2026 Struttura gestita da un host privato

Recensioni - Casa Emilia

Commenti veri al 100% Ospiti veri. Viaggi veri. Opinioni veri.
8.9 In base a 32 recensioni

Servizio

9.6

8.9

Posizione

8.7

Prezzo/qualità

9.3

Pulizia

9.3

Personale

9.8

Comodità

9.6

Domande frequenti: Casa Emilia

Quanto costa il soggiorno in ville Casa Emilia?
Il prezzo del soggiorno in ville Casa Emilia dipende dalla data, prezzo, dalla quantità degli ospiti ecc.. Inserite le vostre date per vedere i prezzi.
Quali sono gli orari di check-in e check-out in ville Casa Emilia?
Fare check-in in ville Casa Emilia è possibile dalle ore 15:00 e fare check-out fino alle ore 10:00.
C’è un parcheggio in Casa Emilia?
In Casa Emilia il parcheggio non è disponibile.
Quanto è lontano si trova Casa Emilia dall’aeroporto più vicino?
Casa Emilia si trova 46 km dall’aeroporto più vicino (Aeroporto di Lugano Agno).
Come prenotare albergo
Data del vostro viaggio
Compila la forma di prenotazione semplice
Prenotazione istantanea
Ricevi la conferma della tua prenotazione alla posta elettronica
Paga direttamente in albergo