Villa Sassi

via cardina 61, Como, Italia (2.9 km dal centro)
Cerca
Posizione / nome dell'albergo
Data di arrivo:
Data di partenza:
Adulti/Bambini:
Adulti 2, Bambini 0
Camera 1:
* Bambini da 2 a 12 anni
Garanzia del prezzo migliore
Commissione per prenotazione esclusa
La conferma di prenotazione istantanea
2.9 km dal centro
Specifica le date per vedere i prezzi e disponibilità
Tipo di camera Ospiti
x 6
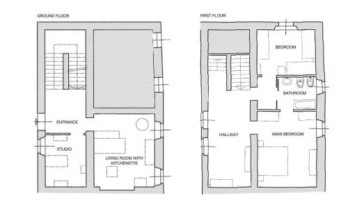
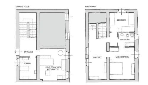
Villa
Descrizione di camera
This villa features a private 2000 m² garden and a fireplace.
Bambini con letti supplementari
Bambini: non più di 5
Comodità Bollitore tè/macchina caffè, Doccia, Vasca, Cassaforte, TV, Asciugacapelli, Ferro da stiro, Angolo cottura, Radio, Frigorifero, Scrivania, Zona soggiorno, Prodotti da bagno in omaggio, Ventilatore, WC, Forno a microonde, Patio, Bagno privato, Riscaldamento, Cucina, Vasca o doccia, Camino, Disponibilità di camere comunicanti, TV a schermo piatto, Ingresso indipendente, Divano, Insonorizzazione, Pavimento in marmo o in piastrelle, Vista, Zona pranzo, Bollitore elettrico, Utensili da cucina, Zanzariera, Armadio o guardaroba, Piano cottura, Bidet, Vista giardino, Vista montagna, Prodotti per le pulizie, Macchina da caffè, Terrazza, Asciugamani, Biancheria per la casa, Tavolo da pranzo, Seggiolone, Arredamento da esterno, Zona pranzo all'aperto, Piani superiori accessibili solo tramite scale, Indipendente, Stand appendiabiti, Stendibiancheria, Carta igienica, Bottiglia d'acqua, Pattumiere, Calici da vino, Lettini e culle per bambini, Bagnoschiuma, Presa elettrica vicino al letto, Cuscino non di piume, Vista cortile interno, Estintori, Accesso con chiavi, Gel igienizzante per le mani

Situato vicino - Villa Sassi

Aeroporti più vicini
  • Aeroporto di Lugano Agno 31 km
  • Aeroporto di Locarno 58 km
  • Aeroporto di Milano Malpensa 53 km
Bellezze della natura
  • Lago di Como 0 m
Cosa c'è in zona
  • Broletto 4.2 km
  • Piazza Cavour Como 4.1 km
  • Silk Museum 5 km
  • Tempio Voltiano 3.5 km
  • Giardini Tempio Voltiano 3.4 km
  • Parco Spina Verde 3 km
  • Castello Baradello 5 km
  • Parco Via Noseda 3.8 km
  • Case Bazzi 4 km
  • Tempio Voltiano 3.4 km
  • Palazzo Gallio 3.7 km
  • Santuario del Crocefisso 3.9 km
  • Basilica di San Giorgio 2.6 km
  • Monument of Alessandro Volta 3.9 km
Mezzi pubblici
  • Stazione Autolinee Como 4.3 km
  • Como 4.5 km
  • Stazione Ferroviaria di Chiasso 3.3 km
Attrazioni principali
  • Museo del Caffè Chicco d'Oro 10 km
  • Battistero di Riva San Vitale 15 km
  • Museo dei Fossili 17 km
Impianti di risalita
  • Sciovia Bedea-Novaggio 40 km
Ristoranti e caffetterie
  • Priamo Giorgio 1.8 km
  • Bar Edicola Aprica 1.5 km
  • Papilogia 1.5 km
  • La Ghironda 1.6 km
  • Bertarini e Vairetti Snc di Bertarini Cesare e Vairetti Mario 600 m
  • Crotto del Lupo 150 m

Condizioni di soggiorno - Villa Sassi

Arrivo 17:00
Partenza 10:00
Internet Internet WiFi disponibile gratuitamente in tutta la struttura.
Parcheggio Parcheggio privato disponibile gratuitamente in loco senza prenotazione.
Animali Animali ammessi su richiesta. Non è previsto alcun supplemento.
Bambini con letti supplementari Sono ammessi bambini di tutte le età. I bambini fino a 1 anno incluso possono soggiornare al costo di € 7 a persona a notte in una culla (se disponibile). Gli ospiti di qualsiasi età possono soggiornare al costo di € 7 a persona a notte in un letto extra (se disponibile). Qualsiasi tipo di letto supplementare o culla è disponibile su richiesta e previa conferma da parte della struttura. I supplementi non sono inclusi nell’importo totale e devono essere pagati separatamente durante il soggiorno.

*Annotazione

Siete pregati di comunicare in anticipo a l'orario in cui prevedete di arrivare. Potrete inserire questa informazione nella sezione Richieste Speciali al momento della prenotazione, o contattare la struttura utilizzando i recapiti riportati nella conferma della prenotazione. Al check-in gli ospiti devono esibire un documento d'identità con foto e una carta di credito. Siete pregati di notare che le Richieste Speciali sono soggette a disponibilità, e potrebbero comportare l'addebito di un supplemento.

Recensioni - Villa Sassi

Commenti veri al 100% Ospiti veri. Viaggi veri. Opinioni veri.
9.1 In base a 25 recensioni

Prezzo/qualità

9.1

Posizione

9.2

Pulizia

9.5

Servizio

8.6

9.1

Personale

9.6

Comodità

9

Domande frequenti: Villa Sassi

Quanto costa il soggiorno in ville Villa Sassi?
Il prezzo del soggiorno in ville Villa Sassi dipende dalla data, prezzo, dalla quantità degli ospiti ecc.. Inserite le vostre date per vedere i prezzi.
Quali sono gli orari di check-in e check-out in ville Villa Sassi?
Fare check-in in ville Villa Sassi è possibile dalle ore 17:00 e fare check-out fino alle ore 10:00.
C’è un parcheggio in Villa Sassi?
In Villa Sassi il parcheggio non è disponibile.
Quanto è lontano si trova Villa Sassi dall’aeroporto più vicino?
Villa Sassi si trova 31 km dall’aeroporto più vicino (Aeroporto di Lugano Agno).
Come prenotare albergo
Data del vostro viaggio
Compila la forma di prenotazione semplice
Prenotazione istantanea
Ricevi la conferma della tua prenotazione alla posta elettronica
Paga direttamente in albergo