Casa Nobile

1 Piazza San Bernardino da Siena, Castelmuzio, Italia (125 m dal centro)
Cerca
Posizione / nome dell'albergo
Data di arrivo:
Data di partenza:
Adulti/Bambini:
Adulti 2, Bambini 0
Camera 1:
* Bambini da 2 a 12 anni
Garanzia del prezzo migliore
Commissione per prenotazione esclusa
La conferma di prenotazione istantanea
125 m dal centro
Specifica le date per vedere i prezzi e disponibilità
Tipo di camera Ospiti
x 8
Villa
Descrizione di camera
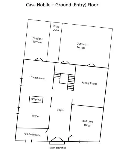
The private pool and fireplace are the special features of this villa. Boasting a private entrance, this spacious villa also features 5 bedrooms, a seating area and 4 bathrooms with a walk-in shower and a bath. Meals can be prepared in the kitchen, which has a stovetop, a refrigerator, a dishwasher and kitchenware. The air-conditioned villa features a flat-screen TV with streaming services, a washing machine, a minibar, a tea and coffee maker as well as garden views. The unit has 5 beds.
Bambini con letti supplementari
Bambini: non più di 7
Comodità Bollitore tè/macchina caffè, Minibar, Doccia, Vasca, Canali pay per view, TV, Telefono, Aria condizionata, Asciugacapelli, Ferro da stiro, Accappatoio, Frigorifero, Scrivania, Bagno in comune, Ferro e asse da stiro, Zona soggiorno, Prodotti da bagno in omaggio, Ventilatore, WC, Lavastoviglie, Lavatrice, Patio, Bagno privato, Riscaldamento, Servizi igienici in comune, Cucina, Vasca o doccia, Camino, Servizi igienici aggiuntivi, Disponibilità di camere comunicanti, TV a schermo piatto, Ingresso indipendente, Divano, Pavimento in marmo o in piastrelle, Vista, Zona pranzo, Bollitore elettrico, Utensili da cucina, Zanzariera, Asciugamani/lenzuola disponibili a pagamento, Piscina privata a uso esclusivo, Asciugatrice, Armadio o guardaroba, Forno, Piano cottura, Bidet, Vista giardino, Vista piscina, Vista luogo di interesse, Soluzioni anallergiche, Prodotti per le pulizie, Macchina da caffè, Terrazza, Asciugamani, Biancheria per la casa, Tavolo da pranzo, Seggiolone, Arredamento da esterno, Zona pranzo all'aperto, Piani superiori accessibili solo tramite scale, Indipendente, Stand appendiabiti, Letto pieghevole, Stendibiancheria, Carta igienica, Doccia a filo pavimento, WC rialzato, Vasca immersione ad acqua fredda, Teli, Zona acqua bassa, Bottiglia d'acqua, Pattumiere, Calici da vino, Lettini e culle per bambini, Shampoo, Balsamo, Bagnoschiuma, Presa elettrica vicino al letto, Adattatore, Cuscino di piume, Cuscino non di piume, Cuscino ipoallergenico, Vista su strada tranquilla, Servizio streaming (per es. Netflix), Armadietti, Allarme antifumo, Estintori, Accesso con chiavi, Rilevatore di monossido di carbonio, Aria condizionata indipendente in ogni alloggio

Situato vicino - Casa Nobile

Aeroporti più vicini
  • Aeroporto dell'Umbria - Perugia San Francesco d'Assisi 86 km
Cosa c'è in zona
  • Il Bosco della Ragnaia 9 km
  • Pieve dell'Assunzione di Maria 3.2 km
  • Parco Zona Peep 15 km
  • Historic Centre of the City of Pienza 8 km
Ristoranti e caffetterie
  • Caffè GM 9 km
  • Albertini Bar Gelateria 8 km
  • Lo Stop di Arthur Richard & C. 15 km
  • Ristorante Ritorno di Fiamma 3.1 km
  • Da Roberto 3.2 km
  • La Locanda di Casalmustia 50 m
Mezzi pubblici
  • San Giovanni d'Asso 8 km
  • Trequanda 12 km

Condizioni di soggiorno - Casa Nobile

Arrivo 16:00
Partenza 10:00

*Annotazione

La struttura non è disponibile per feste di addio al nubilato/celibato o simili. Siete pregati di comunicare in anticipo a l'orario in cui prevedete di arrivare. Potrete inserire questa informazione nella sezione Richieste Speciali al momento della prenotazione, o contattare la struttura utilizzando i recapiti riportati nella conferma della prenotazione. Piscina: periodo di chiusura dom 29 mar 2026 - dom 25 ott 2026 Struttura gestita da un host privato

Recensioni - Casa Nobile

Commenti veri al 100% Ospiti veri. Viaggi veri. Opinioni veri.
9.6 In base a 8 recensioni

Posizione

9.7

Personale

10

Comodità

9.7

Prezzo/qualità

9.7

Servizio

9.7

Pulizia

9.4

9.6

Domande frequenti: Casa Nobile

Quanto costa il soggiorno in ville Casa Nobile?
Il prezzo del soggiorno in ville Casa Nobile dipende dalla data, prezzo, dalla quantità degli ospiti ecc.. Inserite le vostre date per vedere i prezzi.
Quali sono gli orari di check-in e check-out in ville Casa Nobile?
Fare check-in in ville Casa Nobile è possibile dalle ore 16:00 e fare check-out fino alle ore 10:00.
C’è un parcheggio in Casa Nobile?
In Casa Nobile il parcheggio non è disponibile.
Quanto è lontano si trova Casa Nobile dall’aeroporto più vicino?
Casa Nobile si trova 86 km dall’aeroporto più vicino (Aeroporto dell'Umbria - Perugia San Francesco d'Assisi).
Come prenotare albergo
Data del vostro viaggio
Compila la forma di prenotazione semplice
Prenotazione istantanea
Ricevi la conferma della tua prenotazione alla posta elettronica
Paga direttamente in albergo