Villa Prada Beauty through pastures and Lake Garda

2 Via dei Narcisi Up the private road, follow "Villa elena" signs, Castelletto di Brenzone, Italia (2.9 km dal centro)
Cerca
Posizione / nome dell'albergo
Data di arrivo:
Data di partenza:
Adulti/Bambini:
Adulti 2, Bambini 0
Camera 1:
* Bambini da 2 a 12 anni
Garanzia del prezzo migliore
Commissione per prenotazione esclusa
La conferma di prenotazione istantanea
2.9 km dal centro
Specifica le date per vedere i prezzi e disponibilità
Tipo di camera Ospiti
x 18
Casa con 5 Camere da Letto
Descrizione di camera
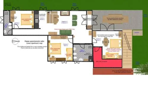
This holiday home features a pool with a view. This spacious holiday home features 2 living rooms, 5 separate bedrooms and 3 bathrooms with a shower and free toiletries. Guests will find a stovetop, a refrigerator, a dishwasher and kitchenware in the well-fitted kitchen. The holiday home also comes with a barbecue. The air-conditioned holiday home features a flat-screen TV with streaming services, a washing machine, a tea and coffee maker, a seating area as well as garden views. The unit has 14 beds.
Bambini con letti supplementari
Bambini: non più di 17
Comodità Bollitore tè/macchina caffè, Doccia, TV, Aria condizionata, Asciugacapelli, Ferro da stiro, Angolo cottura, Frigorifero, Scrivania, Ferro e asse da stiro, Zona soggiorno, Prodotti da bagno in omaggio, WC, Forno a microonde, Lavastoviglie, Lavatrice, Bagno privato, Riscaldamento, Cucina, Vasca o doccia, TV a schermo piatto, Divano, Vista, Parquet o pavimento in legno, Zona pranzo, Bollitore elettrico, Utensili da cucina, Piscina privata a uso esclusivo, Armadio o guardaroba, Forno, Piano cottura, Barbecue, Bidet, Vista giardino, Vista montagna, Prodotti per le pulizie, Macchina da caffè, Terrazza, Asciugamani, Biancheria per la casa, Tavolo da pranzo, Arredamento da esterno, Zona pranzo all'aperto, Semi-indipendente, Stand appendiabiti, Letto pieghevole, Stendibiancheria, Carta igienica, Giochi da tavolo/puzzle, Libri, DVD o musica per bambini, Divano letto, Piscina con vista, Zona acqua bassa, Pattumiere, Calici da vino, Lettini e culle per bambini, Shampoo, Balsamo, Bagnoschiuma, Presa elettrica vicino al letto, Adattatore, Cuscino non di piume, Vista cortile interno, Servizio streaming (per es. Netflix), Armadietti, Allarme antifumo, Estintori, Accesso con chiavi, Rilevatore di monossido di carbonio, Fonti di monossido di carbonio

Situato vicino - Villa Prada Beauty through pastures and Lake Garda

Aeroporti più vicini
  • Aeroporto di Verona-Villafranca 44 km
  • Aeroporto di Montichiari 77 km
Cosa c'è in zona
  • Gruppo Aeromodellistico del Garda 12 km
  • Volo Libero Scaligero 11 km
  • Passeggiata Valle dei Mulini 13 km
  • Jungle Adventure Park 6 km
  • Parco Pubblico delle Fontane 8 km
  • Campo Sportivo 2.2 km
  • Monumento al Cercatore di Tartufo 12 km
  • Monumento ai Caduti 12 km
  • Croce del Viaggiatore 12 km
Bellezze della natura
  • Lago di Garda 0 m
  • Passo Campiano 15 km
  • Fiume Aril 10 km
  • Monte Luppia e Pta San Vigilio 9 km
Impianti di risalita
  • Funivia Malcesine - Monte Baldo tratto primo 14 km
  • Monte Baldo - Prà Alpesina 41 km
  • Funivia Malcesine - Monte Baldo tratto secondo 16 km
Attrazioni principali
  • Castello Scaligero 14 km
Mezzi pubblici
  • Autostazione Malcesine 14 km
Spiagge nei dintorni
  • Spiaggia Acquafresca 9 km
Ristoranti e caffetterie
  • Bar Osteria da Agostino e Rita 12 km
  • La Primeria dal Sarsissa 7 km
  • Olivo-Bar, Ristorante, Pizzeria 7 km
  • M & L di Salvetti M. & Zaninelli L. 11 km
  • Osteria dal Cet 11 km
  • Al Cacciatore 2.4 km

Condizioni di soggiorno - Villa Prada Beauty through pastures and Lake Garda

Arrivo 17:00
Partenza 10:00

*Annotazione

La struttura non è disponibile per feste di addio al nubilato/celibato o simili. Piscina: periodo di chiusura gio 5 mar 2026 - dom 31 mag 2026 Struttura gestita da un host privato

Recensioni - Villa Prada Beauty through pastures and Lake Garda

Commenti veri al 100% Ospiti veri. Viaggi veri. Opinioni veri.
9 In base a 1 recensione

Prezzo/qualità

7.5

9

Posizione

10

Pulizia

10

Comodità

10

Personale

10

Servizio

10

Domande frequenti: Villa Prada Beauty through pastures and Lake Garda

Quanto costa il soggiorno in ville Villa Prada Beauty through pastures and Lake Garda?
Il prezzo del soggiorno in ville Villa Prada Beauty through pastures and Lake Garda dipende dalla data, prezzo, dalla quantità degli ospiti ecc.. Inserite le vostre date per vedere i prezzi.
Quali sono gli orari di check-in e check-out in ville Villa Prada Beauty through pastures and Lake Garda?
Fare check-in in ville Villa Prada Beauty through pastures and Lake Garda è possibile dalle ore 17:00 e fare check-out fino alle ore 10:00.
C’è un parcheggio in Villa Prada Beauty through pastures and Lake Garda?
In Villa Prada Beauty through pastures and Lake Garda il parcheggio non è disponibile.
Quanto è lontano si trova Villa Prada Beauty through pastures and Lake Garda dall’aeroporto più vicino?
Villa Prada Beauty through pastures and Lake Garda si trova 44 km dall’aeroporto più vicino (Aeroporto di Verona-Villafranca).
Come prenotare albergo
Data del vostro viaggio
Compila la forma di prenotazione semplice
Prenotazione istantanea
Ricevi la conferma della tua prenotazione alla posta elettronica
Paga direttamente in albergo